
Pikku-Palomäki – Kouvolan ensimmäinen lähiö
Rurik Wasastjerna
Pikku-Palomäki on Kouvolan ensimmäinen aluerakentamiskohde. Tuhannen hengen asumalähiön asemakaavan suunnitteli kaupunginarkkitehti Reino Hämäläinen 1962.[1] Hän suunnitteli myös suuren osan alueen asuinrakennuksista. Rakentaminen aloitettiin 1963, ja alue valmistui kolmessa vuodessa.
Arkkitehdit Meurman ja Siltavuori laativat Kouvolan yleiskaavan 1954. Siinä Pikku-Palomäen alue on asuinsolu 5. kaupunginosan (Käpylän) kyljessä.
Pikku-Palomäkeä on kutsuttu ”Kouvolan Tapiolaksi”[2], mutta sillä on selviä yhtymäkohtia arkkitehti Olli Kivisen 1960 kaavoittamaan Pihlajamäen lähiön eteläosaan Helsingissä. Mäkisen metsämaaston loivasti kumpuilevalle ylätasangolle rakennettua aluetta rajaavat jyrkät rinteet. Aluetta etelässä ja lounaassa rajaavat pitkät rivitalot ja alueen korkeimmassa osassa, pohjoisreunan harjanteella, nousevat tornitalot (arkkitehdit Reino Hämäläinen ja Eero A. Kajava). Näiden rakennusten välissä ovat kolmikerroksiset kerrostalot viuhkamaisessa muodostelmassa. Kerrostalot ovat 2–3 portaan taloja, joissa on maanpäällinen pohjakerros ja kolme asuinkerrosta. Tämä hissittömän kerrostalon tyyppi oli 1960-luvulla vallitseva. Alvar Aallon Kotkan Sunilaan 1936 suunnittelema asuinalue on viuhkamaisuudessaan samankaltainen, ja Sunilasta otettiin vaikutteita monien asuinalueiden suunnitteluun.

Pikku-Palomäen lamellitaloja, Reino Hämäläinen, 1967. Kuva: Rurik Wasastjerna.
Pikku-Palomäki on Kouvolan ensimmäinen ja viimeinen metsälähiö, jossa sovellettiin avointa, maiseman piirteisiin tukeutuvaa rakennusten sijoittelua. Viitakumpu (arkkitehti Ensi R. Louhiluoto) on sekoitus vapaata luonnonmukaista suunnittelua ja tuulimyllykorttelikaavaa. Eskolanmäki (Ensi R. Louhiluoto) on uusruutukaavaa.

Rakennustekniikka kehittyi tuohon aikaan rationaalisempaan suuntaan. 1950-luvulle tyypillisistä sekarungoista pyrittiin eroon. Suosittu ratkaisu oli ns. kirjahyllyrunko. Siinä kantavat poikkiseinät ja pohjalaatat valettiin paikalla betoniseksi kehikoksi, johon kevyet, levyrakenteiset julkisivut ripustettiin. Osa Pikku-Palomäen taloista on toteutettu tällä periaatteella.
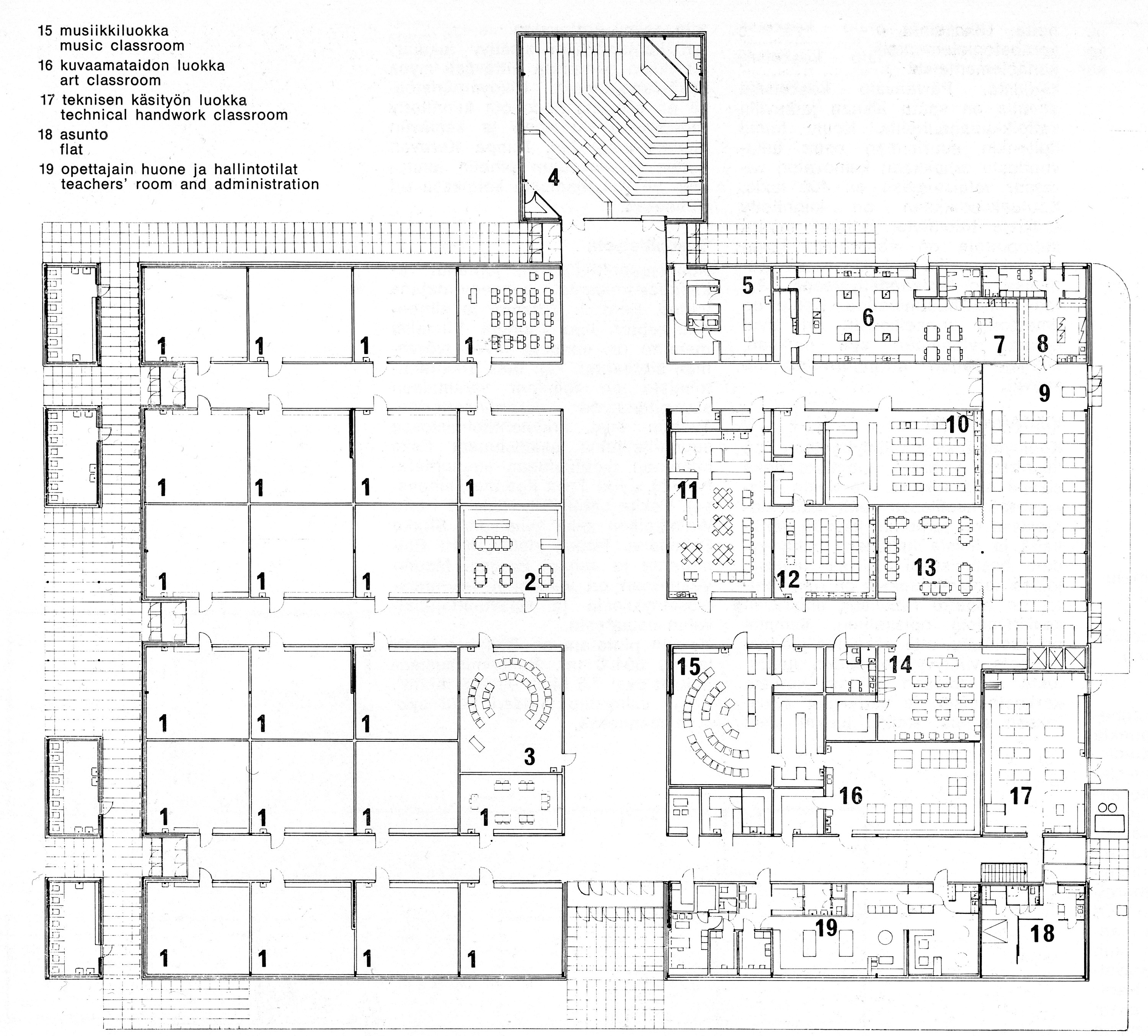
Alueen itäosassa tasamaalla on aluetta palvelevien julkisten rakennusten kolmikko. Kukin rakennus ilmentää aikakauden rakenteellisen järjestelmäajattelun innoittamaa arkkitehtuuria. Mansikka-ahon koulu ja urheiluhalli valmistuivat 1962 (arkkitehti Olavi Soukka), keskuskeittiö on vuodelta 1976 (arkkitehti Eeva Keppo). Keskuskeittiö jakautuu toimintojen mukaisesti teräsristikko- ja kivirakenteisiin osiin. Koulurakennus, joka on purettu, oli 73,6 x 54,7 m:n halli, joka perustui 10,8 x 10,8 m:n moduuliverkkoon sijoitettujen teräspilarien kannattamiin ulkopuolisiin teräsristikkoihin. Rakenne salli maksimaalisen joustavuuden sisätilojen järjestelyssä ja tiheä kattoikkunaverkosto takasi valonsaannin. Pyramidin muotoinen 1971 valmistunut liikuntahalli (arkkitehti Olavi Soukka) perustuu liimapuurunkoon, josta ulkonevat sivutilat rytmittävät julkisivua.
Oik.: Mansikka-ahon urheiluhalli, Olavi Soukka, 1971. Kuva: Rurik Wasastjerna.
Kirjoittaja
Rurik Wasastjerna, arkkitehti, artikkeli perustuu tekijän Kouvolan kaupungille tekemään inventointiin.
Artikkeli on julkaistu 2019.
Lähteet
Juvonen, Jaana 2003. Kouvola 1939-2003 – Kauppala, läänin pääkaupunki, aluekeskus. Kouvolan kaupunki.
Wasastjerna, Rurik 2011. Muutakin kuin rautatieristeys – Kouvolan keskustaajaman kaavoitus- ja rakennusperintö. Kouvolan kaupunginmuseo.
Viitteet
[1] Juvonen 2003, 227.
[2] Juvonen 2003, 227.